pub totem
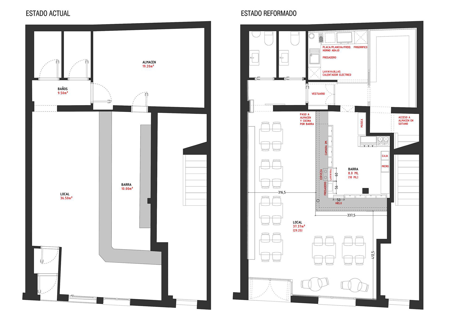
reforma y ampliación de pub totem | 2 0 1 5 | superficie construida 55 m² | instalaciones juan carlos llorente vea | rincón de soto
reforma y ampliación de pub totem | 2 0 1 5 | superficie construida 55 m² | instalaciones juan carlos llorente vea | rincón de soto